Description
Located in the heart of a recent and perfectly maintained residence, this superb 4.5-room apartment of approx. 128 m² weighted floor area will appeal to lovers of comfort, modernity and quality of life.
Exclusivity Régie Immosol
The property's assets:
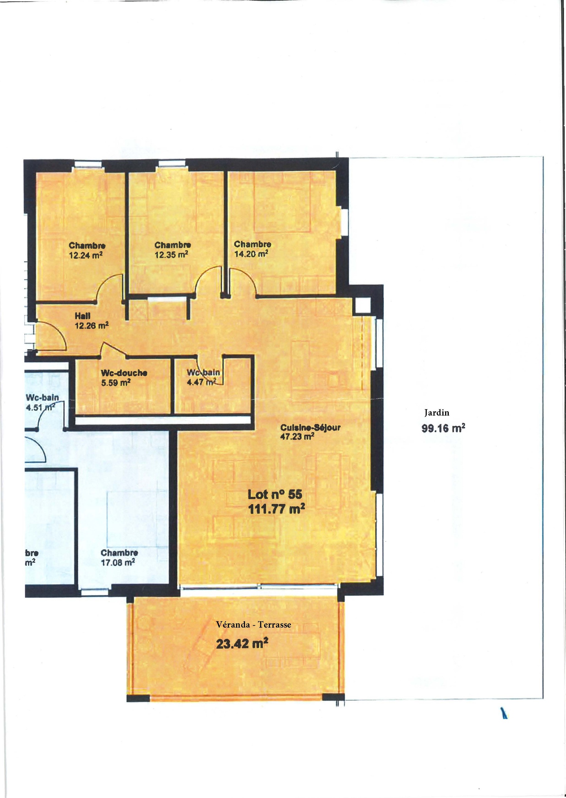
- Spacious bright living room with modern open kitchen - Zug appliances
- Direct access to a veranda and terrace of approx. 23 m²
- Private, enclosed garden of approx. 100 m²
- 3 comfortable bedrooms (12m², 12m², and 14m²)
- Bathroom with washing column shower room
- Welcoming entrance hall
An exceptional living environment
Located in the Champs-Meunier estate, a neighborhood completed in 2015, this property benefits from a privileged environment :
- 45,000 m² of surface area, 90% of which is green space
- Pedestrian paths, wooded areas and playground
- Access via private driveway guaranteeing calm and security
Construction & quality features
- Minergie standards (high energy performance)
- Optimum thermal and acoustic insulation (triple glazing, double-flow ventilation)
- Ecological pellet heating
- Photovoltaic solar panels
- High-quality materials and meticulous finishes
Annexes
- Cellar approx. 10 m²
- Bicycle room
- Car and two-wheeler parking space in the basement (extra)
A favorite apartment, combining comfort, modernity and quality of life, to discover without delay!
Contact and visits:
Mark Besserer - Régie Immosol
079 157 35 35
Situation
At the entrance to Le Mont-sur-Lausanne, this apartment benefits from a strategic location:
- Lausanne city center 10 minutes away
- Geneva and its airport approx. 40 minutes away
- Fast freeway access (Blécherette exit)
- Public transport in the immediate vicinity (TL bus)
Walkable access to the future m3 metro line, which will link Lausanne train station to Blécherette.
Conveniences
Neighbourhood
- Residential area
- Shops/Stores
- Bus stop
- Child-friendly
Outside conveniences
- Terrace/s
- Garden
Inside conveniences
- Lift/elevator
- Underground car park
- Open kitchen
- Cellar
- Triple glazing
- Bright/sunny
Equipment
- Fitted kitchen
- Connections for washing tower
- Shower
- Bath
- Photovoltaic panels
- Optic fiber
- Electric blind
- Interphone
Floor
- Tiles
- Parquet floor
Condition
- As new
Orientation
- South
Standard
- Minergie®
Energy efficiency (CECB)
The energy label is the result of an evaluation of the global energy performance (energy consumption and energy source) and of the performance of the building envelope.













